52m 2

Niezwykłe rozwiązanie funkcjonalne i ekstra pokój dla dziecka

Ulubione mieszkanie w rodzinnej dzielnicy i własna przestrzeń dla dziecka: Zadanie, które udało się rozwiązać

Młoda rodzina, która mieszkała w ukochanym i przytulnym mieszkaniu w swojej rodzimej okolicy, zwróciła się do nas z wielką prośbą: nie chcieli zmieniać swojego miejsca zamieszkania, ale jednocześnie pragnęli zapewnić swojemu rosnącemu dziecku własny pokój. Świadomi, jak ważna jest osobista przestrzeń dla każdego z nas, przyjęliśmy to wyzwanie i opracowaliśmy koncepcję, która spełni ich potrzeby.

Niezwykłe rozwiązanie funkcjonalne i ekstra pokój dla dziecka
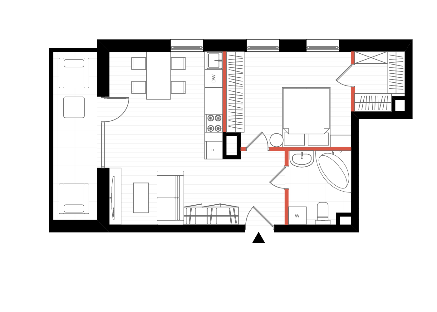
Istniejący układ
Potrzeby i problemy

Istniejący układ

Podczas tworzenia dodatkowego pokoju w mieszkaniu zwykle kierujemy się liczbą okien. Jednak w tym konkretnym mieszkaniu napotkaliśmy inne trudności: konfiguracja pomieszczenia, rozmieszczenie okien (są dość blisko siebie i znajdują się wzdłuż jednej ściany), a także rozmieszczenie łazienki i kuchni utrudniają możliwość zmiany układu zgodnie z tradycyjnymi zasadami. Dlatego musimy pójść nietypową drogą.

Stworzenie nowego pokoju będzie możliwe dzięki największemu pomieszczeniu w tym mieszkaniu, czyli kuchni i jadalni, oraz niekonwencjonalnemu spojrzeniu ?

Demontaż ścianek działowych w celu osiągnięcia optymalnego rozmieszczenia i funkcjonalności
Analiza planu nieruchomości

Demontaż ścianek działowych w celu osiągnięcia optymalnego rozmieszczenia i funkcjonalności

Aby osiągnąć postawione cele, będziemy musieli pozbyć się istniejących ścianek działowych:

  • ścian wokół łazienki – dla bardziej optymalnego wykorzystania tego miejsca i ergonomicznego rozmieszczenia urządzeń sanitarnych,
  • ścianek przy garderobie – w tym przypadku lepszym rozwiązaniem będzie wykorzystanie szaf w każdym pokoju,
  • ścianek między kuchnią a sypialnią – funkcje w tej strefie zostaną rozdzielone inaczej.
Nie odkładaj na jutro.
Zrób to dzisiaj!

Skontaktuj się z nami i uczyń, że Twoje mieszkanie będzie wygodniejsze niż kiedykolwiek wcześniej

    Lub

    Poświęć 15 minut na wypełnienie formularza bezpłatnej wyceny i ciesz się funkcjonalnym mieszkaniem przez długi czas. Przejdź do formularza

    Tworzymy harmonijną przestrzeń dla całej rodziny

    Połączenie przytulności i funkcjonalności

    Połączenie przytulności i funkcjonalności

    Dzięki wprowadzonym zmianom stworzyliśmy nową przestrzeń, w której centralna część łączy wszystkie pomieszczenia i oferuje praktyczne rozwiązania do przechowywania rzeczy oraz umieszczenia pralki.

    Skomplikowana konfiguracja sypialni uwzględnia wszystkie potrzebne funkcje tego miejsca, a w zamian dla wcześniejszej garderoby zyskaliśmy pełnowymiarowy pokój dla dziecka.

    Nawet pomimo dodania kolejnego pokoju, udało nam się zachować otwartą przestrzeń, w której cała rodzina może spędzać czas razem. A do przytulnego salonu, gdzie znajduje się okrągły stół, możemy zapraszać bliskich i przyjaciół.

    Nie odkładaj na jutro.
    Zrób to dzisiaj!

    Skontaktuj się z nami i uczyń, że Twoje mieszkanie będzie wygodniejsze niż kiedykolwiek wcześniej