53m 2

Przestronny salon z aneksem kuchennym

Przekształcenie przestrzeni: Dopasowanie mieszkania do nowych priorytetów i harmonii w życiu.

Mieszkania, które były świetne dla naszych rodziców, nie zawsze odpowiadają naszym własnym pragnieniom i potrzebom. Chcemy czuć się dobrze w swoim wnętrzu i mieć miejsce, w którym możemy być naprawdę sobą. Więc, czasami warto wprowadzić zmiany, żeby nasze mieszkanie było takie, jak nam się marzy.

 

Przestronny salon z aneksem kuchennym
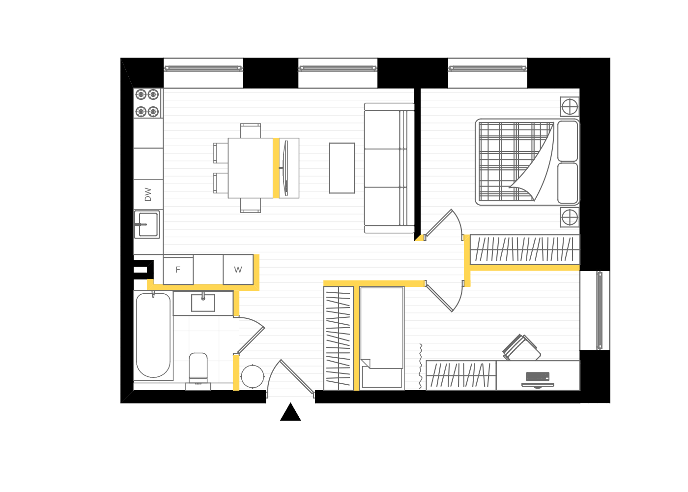
Istniejący układ
Potrzeby i problemy

Istniejący układ

Ta urocza mieszkanka w spokojnej okolicy została odziedziczona przez młodą rodzinę z pociechą. No i oczywiście pojawiły się pewne wyzwania dotyczące aranżacji. Przede wszystkim, trzeba było zorganizować pokój dla malucha, bo przecież i on potrzebuje swojej strefy działania. Ale to nie wszystko! Młodzi rodzice marzyli też o tym, aby stworzyć przestrzeń, gdzie kuchnia i salon będą ze sobą splecione, bo co może być lepszego niż wspólne gotowanie i wspólny czas spędzony przy jedzeniu? Oczywiście, nie mogło zabraknąć również przyjemności kąpieli, więc poszukiwaliśmy miejsca na dodanie wanny w łazience. Podsumowując, mamy kilka „łamigłówek” do rozwiązania:

  • brak pokoju dla malucha,
  • brak tej magicznej wspólnej przestrzeni kuchni i salonu,
  • brak szafki na powitanie,brak wanny.
Rozbiórka ścianek działowych: Nieograniczone możliwości przy niewielkich kosztach
Analiza planu nieruchomości

Rozbiórka ścianek działowych: Nieograniczone możliwości przy niewielkich kosztach

Dla wielu osób rozwiązanie problemu demontażu ścianek działowych w mieszkaniu może wydawać się trudnym zadaniem. Jednak w rzeczywistości otwiera to niezliczone możliwości stworzenia nowej przestrzeni, która odpowiada Twoim potrzebom. A najlepszą częścią tego rozwiązania jest to, że koszty takich prac stanowią jedynie 3-5% ogólnej wartości remontu.

Nie odkładaj na jutro.
Zrób to dzisiaj!

Skontaktuj się z nami i uczyń, że Twoje mieszkanie będzie wygodniejsze niż kiedykolwiek wcześniej

    Lub

    Poświęć 15 minut na wypełnienie formularza bezpłatnej wyceny i ciesz się funkcjonalnym mieszkaniem przez długi czas. Przejdź do formularza

    Połączenie kuchni z salonem i tworzenie osobnego pokoju

    Harmonia smaku i przytulności: Idealne połączenie w jednym miejscu

    Harmonia smaku i przytulności: Idealne połączenie w jednym miejscu

    Po przeprowadzce mieszkanie zyskało otwartą przestrzeń, w której smaczne kulinaria i przyjemny odpoczynek są podzielone na dwie osobne strefy, ale przy tym pozostają jednym wspólnym miejscem. Ciemny korytarz zniknął, a na jego miejscu pojawiła się przestronna szafa, a nowy pokój dziecięcy ma unikalną możliwość podziału za pomocą zasłony, pozwalając dziecku stworzyć swój własny mały świat. Po przeprojektowaniu rodzina zyskała:

    • wspólną przestrzeń do spędzania czasu razem,
    • dużą szafę przy wejściu,
    • wygodną i funkcjonalną łazienkę,
    • oddzielny pokój dziecięcy.

    Pamiętaj, że życie to przygoda, dlatego stwórzmy przestrzeń, która pomoże wam cieszyć się każdą chwilą z dobrym nastrojem!

    Nie odkładaj na jutro.
    Zrób to dzisiaj!

    Skontaktuj się z nami i uczyń, że Twoje mieszkanie będzie wygodniejsze niż kiedykolwiek wcześniej